| NIVEAU | PIÈCE | SURFACE |
Local commercial
NICE (06000)
- 179 m²
- 1 pièce(s)
- NC chambre(s)
- NC
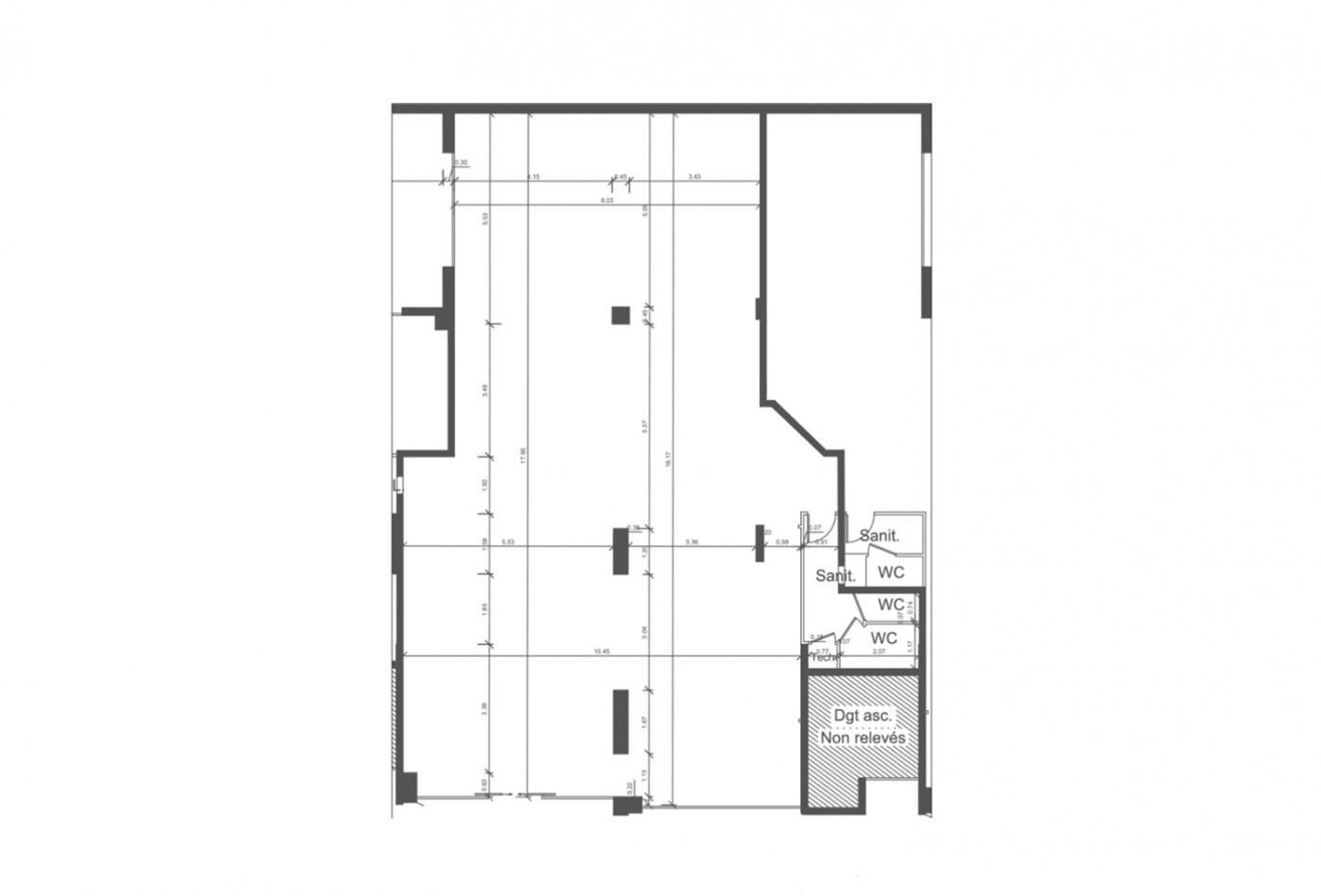
REVALYS ENTREPRISE & COMMERCE vous proposons à la vente un local commercial de 179 m² de plain-pied, situé en plein centre, à proximité immédiate du boulevard Gambetta, des commerces, commodités et transports.
Conditions :
Bien vendu en l’état ou curé,
Toutes activités autorisées, hors activités générant des nuisances,
Possibilité d’acquérir un garage en sus.
Ce local se prête parfaitement à l’installation d’un cabinet médical, profession libéral, de bureaux, ou à un espace de stockage.
Prix TTC et Honoraires à charge vendeur TTC - REVALYS - Samuel Puig-Bloch - 06 99 13 33 43 - Plus d'informations sur www.revalys.eu (réf. 060209823) REVALYS - Samuel Puig-Bloch Samuel - 06 99 13 33 43 - Plus d'informations sur www.revalys.eu (réf. 060209823)
Notre barème d'honoraires
cette annonce à un ami
Veuillez réessayer à nouveau






